PVC-U-näkölasi DN15-200 GB Vakio

Räätälöity tummanharmaa putkimainen PVC-U näkölasi stabiili pyöreä borosilikaattihavaintovirtauksen ilmaisin nestemäinen öljylaippa muovinen näkölasi
Alkuperä: Kiina
Tuotemerkki: KXPV
Tekniikka: taottu
Liitäntä: Laippa
Materiaali: PVC-U
Väri: Tummanharmaa
Muoto: supistava
Pään koodi: kuusikulmio
Tuotteen nimi: Sight Glass
Koko: DN15-200
Toimitusaika: 7 päivää
MOQ: 1 kpl

Paineluokka: 1,0 Mpa (10 bar)

Sovelluksen lämpötilarajoitusten luettelo

Materiaali Keskilämpötila℃ Materiaali Keskilämpötila℃
PVC-C -20 ℃ ~ 95 ℃ PVC-U -5 ℃ ~ 45 ℃
FRPP -20 ℃ ~ 120 ℃ PPH -20 ℃ ~ 110 ℃
PVDF 40 ℃ ~ 150 ℃

Tuotteen rakenteelliset ominaisuudet

1. Kompakti ja houkutteleva ulkonäkö
2. Kevyt ja helppo asentaa
3. Kulutuskestävä ja helppo purkaa, mikä takaa yksinkertaisen huollon
4. Valmistettu borosilikaattilasista, se on erittäin korroosionkestävä ja sopii monenlaisiin sovelluksiin
5. Soveltuu useimpiin ankariin työympäristöihin ja sillä on pitkä käyttöikä

Osa Materiaalitaulukko

Tarkkailulasikokoonpanon yksityiskohtainen piirustus

Ei

Nimi

Materiaali

1

Pohja

FRPP,PVDF,PVC-C,PVC-U,PPH

2

Kuusikulmainen mutteri

terästä

3

Kaksipäinen nappi

terästä

4

Lasi

Lasi

5

Aluslevy

EPDM, FPM

6

Pohja

FRPP,PVDF,PVC-C,PVC-U,PPH

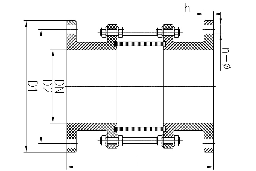
Mittasuhteiden luettelo



DN(mm) D d L b n-Φ
GB JIS ANSI GB JIS ANSI
25 (1/2") 115 85 90 79.4 240 14 4-Φ14 4-Φ19 4-Φ16
32 (11/4") 150 100 100 232 16 4-Φ18 4-Φ19
40 (11/2") 150 110 105 98.4 232 16 4-Φ18 4-Φ19 4-Φ16
50 (2") 165 125 120 120.7 233 16 4-Φ18 4-19 4-Φ18
65 (21/2") 195 145 140 139.7 278 19 4-Φ18 4-19 4-Φ18
80 (3") 195 160 150 152.4 278 20 8-Φ18 8-Φ19 4-Φ18
100 (4") 220 180 175 190.5 310 21 8-Φ18 8-Φ19 8-Φ18
125 (5") 250 210 210 215.9 350 26 8-Φ18 8-Φ23 8-Φ22
150 (6") 285 240 240 241.3 385 26 8-Φ22 8-Φ23 8-Φ22
200 (8") 340 295 298.5 400 30 8-Φ22 8-Φ22
250 (10") 406 350 355 362 400 30 12-Φ22 12-Φ25 12-Φ26
300 (12") 475 400 431.8 440 32 12-Φ22 12-Φ26
Viesti Palaute
Tietoja meistä
Kaixin Pipeline Technologies Co., Ltd.
Vuonna 1999 perustettu Kaixin Pipeline Technologies Co., Ltd. on korkean teknologian yritys, joka yhdistää T&K:n, valmistuksen, myynnin ja palvelun. Yrityksellä on useita arvostettuja sertifiointeja, mukaan lukien National High-Tech Enterprise, "Little Giant" Specialized and Sophisticated SME, National Single Product Champion (viljely), Provincial Technology-based SME, Ningbo Specialized and Sophisticated SME, Ningbo Single Product Champion (viljely), Ningbo District, Green-Lepe & Valctory Technology, Fair & Valctory Ningbo neljän tähden Management Innovation Enterprise ja Enterprise Data Management Capability kypsyysaste 2.
Olemme erikoistuneet kehittämään, valmistamaan ja toimittamaan ei-metallisia korroosionkestäviä tuotteita kemiallisiin sovelluksiin, mukaan lukien muoviventtiilit, putket, putkiliittimet ja korroosionkestävät pumput. Tuotevalikoimamme kattaa PVC-C:n, PVC-U:n, PVDF:n, PPH:n ja FRPP:n kaltaiset materiaalit kattavalla valikoimalla tyyppejä ja eritelmiä. Erityisesti läppäventtiiliemme voivat saavuttaa halkaisijaltaan DN1000, kun taas putket ja liittimet ulottuvat DN800:aan, mikä korjaa markkinoiden aukkoja ja säilyttää kilpailuetumme alalla.
"Teknologiavetoinen, ajan tahdissa pysyminen" -periaatteen ohjaamana Kaixin osoittaa vuosittain lähes 10 miljoonaa RMB T&K-toimintaan. Varmistamme tuotteiden erinomaisen laadun standardoidun automatisoidun valmistuksen ja tiukan tuontiraaka-aineiden hankinnan avulla. Kansainvälisen kehitysstrategiamme mukaisesti seuraamme jatkuvasti globaalien markkinoiden kehitystä ja hyödynnämme digitaalisia kanavia tuodaksemme korkealaatuisia "Made in China" -tuotteita asiakkaille ympäri maailmaa.
Ningbo • Fenghuan T&K- ja tuotantotukikohta
Kaixin Ultra-Pure Pipe Technology (Ningbo) Co., Ltd. on investoinut yhteensä 200 miljoonaa RMB:tä, ja se on perustanut uuden materiaalilaboratorion yhteistyössä yliopistojen ja tutkimuslaitosten kanssa, rakentanut nykyaikaisen tuotantokannan ja asentanut 8 täysin automatisoitua tuotantolinjaa modifioiduille muoveille ja 8 polymeerimateriaaleille. Laitos on omistettu uusien modifioitujen muovien ja polymeerimateriaalien tutkimukselle ja kehitykselle, tuotantoon ja käyttöön. Kaixin on myös sitoutunut houkuttelemaan huippuosaajia eri tieteenaloilla, edistämään jatkuvasti tuoteinnovaatioita ja tuotemerkkien kehitystä tavoitteenaan tulla maailmanlaajuisesti tunnustettu johtaja polymeeriventtiilien, putkien ja liitosten T&K- ja valmistuksessa.
Kunniakirja
  • honor
  • honor
  • honor
  • honor
  • honor
  • honor
  • honor
  • honor
  • honor
Uutiset